
六十年代,Bowers & Wilkins在英國南部的一個沿海小鎮,沃辛誕生。這里就不得不提及Bowers & Wilkins這個品牌命名的來歷,因為它的名字來自兩位傳奇人物,John Bowers和Ray Wilkins。之所以能夠傳承,正因為是底蘊豐厚,這對于Bowers & Wilkins來說,它們是最有資格說自己是最有“底氣”的,要知道Bowers & Wilkins創立于1966年,跨越了將近半個世紀的原音締造者,不斷為探索最好的聲音而一直打造優質的揚聲器產品。

Bowers&Wilkins CT800系列定制安裝揚聲器專為大空間和對家庭影院聲音的挑剔客戶而設計。CT800系列定制安裝揚聲器揚聲器具有為全球知名的800系列鉆石開發的所有關鍵傳感器技術,包括Diamond球頂高音揚聲器,Continuum中頻驅動器和Aerofoil低音錐體。CT800 系列實現了參考級力量、清晰度和控制,每一款揚聲器都可以定制到您專用的家庭影院房間中。一旦安裝,這些揚聲器即藏身匿形,但它們發出的聲音卻處處可聞。從噴氣發動機的轟鳴聲到用三維細節刻畫出的逼真樓梯吱吱作響聲,您會感覺宛如身臨其境。

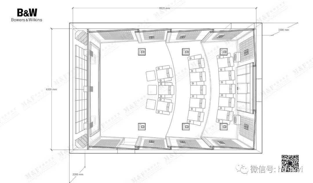
Bowers & Wilkins (11.4.6) Dolby Atmos 杜比全景聲影音系統
這是一套專門針對高端私家影院而研發影音系統,且可高度個性定制化設計,應用于中型到大型家庭影院空間并且提供高效率和高動態的音頻輸出,能提供HiFi音質以及完美的清晰度。
適用于50-80平方的房間

電子設備包括
Trinnov Amplitude 8(3臺)
Trinnov Altitude32 (1臺)
Bowers & Wilkins SA1000(4臺)
揚聲器包括
Bowers & Wilkins CT-8.2(3只)
Bowers & Wilkins CWM-7.3(8只)
Bowers & Wilkins CCM7.3 (6只)
Bowers & Wilkins SW-CT15(4只)







英國Bowers&Wilkins定制安裝系列
說起來英國 Bowers&Wilkins算是定制安裝音箱中產品線比較齊全的一個品牌。針對不同的解決方案,英國 Bowers&Wilkins (寶華韋健)為不同場景推出了眾多影院產品,且性價比甚高,除了針對獨立影院所需要的定制安裝揚聲器外,還針對客廳和其他空間推出了高顏值的產品,滿足市場不同用家的需求。


例如針對客廳影院,可以使用CCM系列/CWM系列的定制影院產品,“方與圓”簡潔的外觀設計以及強大的空間適應能力,對家居的融入度是很高的。
Bowers&Wilkins入墻式揚聲器在您所處的環境中難尋縱跡,但它可以提供自然優美的聲音。而且,這一系列擁有多個不同的型號,無論是為了獲得卓越音質,抑或是在難以企及之地營造非凡音效,總有一款音響系統能如您所愿。


另外,針對隱藏式安裝,天花和入墻在CCM和CWM系列方面都一直是強項,完美和超薄的箱體設計,對于空間設置都十分有好處。另外,針對高端獨立影院,還推出全新的CT700和CT800系列,憑借比普通入墻系列更高性能的表現,獲得了眾多市場和玩家的認可。

Bowers & Wilkins定制影院系列為安裝在透聲屏幕或定制儲藏柜后面的隱蔽位置而設計。該系列內的每個揚聲器都經久耐用,配備深色的驅動裝置,有助于消除投影機或其他光源導致的任何多余反射光。因此當您置身于絕妙音質之時,絲毫不會察覺揚聲器的存在。

針對高端獨立影院,還推出全新的CT700和CT800系列,憑借比普通入墻系列更高性能的表現,獲得了眾多市場和玩家的認可。
我們的旗艦系列CT800將參考標準的品質、清晰度和控制技術與其設計完美融合,這種設計使每款揚聲器都可定制安裝到您專用的家庭影院空間中。一旦安裝,揚聲器即不見其形。無法忽視的就是它的音效。從噴氣發動機的轟鳴聲到用三維細節刻畫出來的惟妙惟肖的吱吱作響的樓梯聲,都將使您覺得仿佛在親身體驗所有情節。
關于Bowers & Wilkins(寶華韋?。?/span>
Bowers & Wilkins(寶華韋健),領譽世界的極致原音傳奇締造者。自1966年誕生英國,一直秉承“忠于本真”的信念,以精湛縝密的制作工藝和極具前瞻性的創新技術,細琢至臻音響藝術。目前,Bowers & Wilkins旗下產品包括傳統Hi-fi揚聲器和新媒體產品兩大類別,涵蓋家居音響、無線音樂系統、隨身耳機及汽車音響等領域,提供全方位的極致原音最佳聽覺體驗。
如果在自己家的別墅里建造私人影音室,涉及聲學設計、美學設計、音響系統設計,而目前市場上影音系統品牌魚目混珠,效果質量參次不齊,建議您在考慮設計自家別墅的私人影音室的時候,選擇專業的影音設計公司進行咨詢。
經過多年的發展銘峰影音已經成為國內為數不多的專業定制安裝系統集成公司,業務范圍涉及別墅私家影院和全宅智能家居系統,擁有專業化工程項目管理體系,嚴格遵循美國THX及CEDIA相關行業標準設計及設備安裝,致力為廣大客戶精心策劃私人影院設計方案及智能家居整體解決方案,個性化定制服務,從聲學設計、光學規劃、智能控制、安裝調校、施工裝飾、售后保障等一站式服務。為客戶設計規劃出專業與美學并重的解決方案,為客戶提供國際頂級水準的品質和服務,創造完美視聽享受和高品質智慧生活是他們的宗旨。

他們會根據客戶您喜歡的品牌和風格、提供的系統預算和影音室的面積容積等要素,確定您的影音系統需要的功放功率的大小、音箱線材的品牌風格、投影機的顯示技術以及房間的聲學處理等參數和設計,拿出最專業的最先進的最高性價比的系統配置方案,以及設計安裝定位的實施計劃,這就是他們極其重要的服務內容,銘峰影音承諾以上服務都是專業的,更為重要的他們的工程師可以親臨您的影音室安裝預埋線材、并提前提取安裝施工第一手資料,讓您和家人在繁忙之余,足不出戶就能真正體驗高清環繞聲極致震撼的影音效果,國際標準化的視聽環境,帶來真正的影院級奢華享受!

休閑時尚的體驗區


為了不斷的提升客戶的體驗感受,銘峰影音打造了一個近500平方全新的全新展廳,現已投入運營,設有2個獨立的影音體驗室和1個休閑廳,整體設計風格以現代科技為主,影院系統配置為11.4.6 (21聲道)Dolby Atmos全景聲。所有的喇叭都是采用隱藏式的安裝設計,保證能與裝修風格的統一。

多功能影音娛樂室


THX、HAA 影音工程師:吳工
聯系方式:18664888663
微信:xxxu777
下一條: 什么是 WaveForming